Aménager un palier en bureau à Châtenois
PAR QUI ?
Caroline, architecte d’intérieur HOMER® dans le Bas-Rhin
OÙ ?
Châtenois – Bas-Rhin (67)
POUR QUI ?
Famille de 5 personnes
OBJECTIFS
Aménager un bureau sur le palier + rangements
MOMENT DE VIE
Améliorer son cadre de vie
STYLE
Contemporain, nordique, chaleureux
SUPERFICIE
20m2
BUDGET
20.000 €
Vous avez un projet pour votre intérieur ? Faites appel à un HOMER® un architecte d’intérieur spécialiste de l’optimisation de l’espace de l’habitat !
Vous rêvez de devenir votre propre architecte d’intérieur ? Rejoignez l’Atelier HOME Découverte et concrétisez votre projet !
Dans cette maison familiale située à Châtenois, les propriétaires souhaitaient aménager la mezzanine existante au R+2 pour y créer un bureau ou une chambre d’amis. Mais après étude, Caroline, architecte d’intérieur HOMER® dans le Bas-Rhin, a identifié une contrainte majeure : la hauteur sous plafond était insuffisante pour y accéder confortablement. Impossible d’y installer un véritable escalier, et donc impossible d’en faire une pièce à part entière.
Caroline a proposé une alternative : transformer le grand palier du R+1 en un vrai espace multifonction. Un bureau lumineux pour télétravailler, des rangements intégrés, un coin nuit pour les invités, un lieu de détente pour les enfants… Un palier devenu pièce à vivre, pensée pour toute la famille.
Aménager un palier sous pente pour le transformer en bureau + espace familial
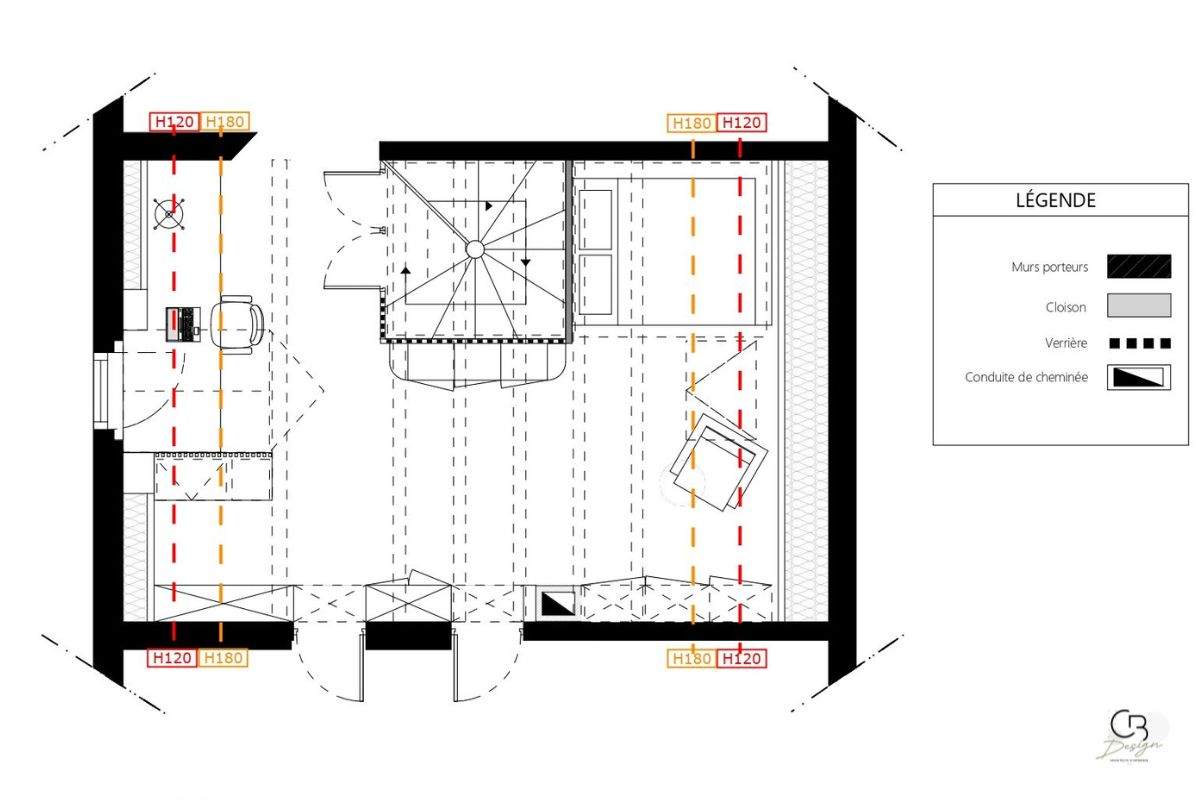
Situé sous combles, le palier du R+1 présente à la fois de belles dimensions… et plusieurs contraintes. Certaines zones sont en faible hauteur, et l’espace doit rester fluide : il dessert deux chambres d’un côté, une troisième de l’autre, ainsi que l’accès à l’escalier. Pas évident, donc, d’y installer différentes fonctions sans gêner le passage.
Et pourtant, les souhaits des clients pour ce palier :
- Un bureau confortable, avec de quoi installer une imprimante, stocker des fournitures, des dossiers, des papiers personnels…
- Une grande bibliothèque pour accueillir les BD de toute la famille, jusqu’ici rangées dans des meubles temporaires.
- Des rangements pour les jeux de société et les jeux de construction, trop encombrants pour les chambres.
- Un coin couchage d’appoint, pour accueillir amis ou famille de passage.
- Une meilleure isolation phonique de l’escalier, pour plus de tranquillité entre les étages.
- Éventuellement, un coin TV, sans en faire une priorité.
Le défi de Caroline : intégrer toutes ces fonctions sans encombrer l’espace, en délimitant chaque zone et en assurant une fluidité dans la circulation.
Les solutions concrètes pour aménager un bureau confortable sur un grand palier
Pour ce projet, Caroline a proposé trois avant-projets sommaires. Les clients ont retenu les solutions qui leur parlaient le plus, ensuite combinées dans une version finale sur mesure. L’aménagement s’est concentré exclusivement sur le palier du R+1, sans modifier ni le RDC, ni la mezzanine existante au R+2.
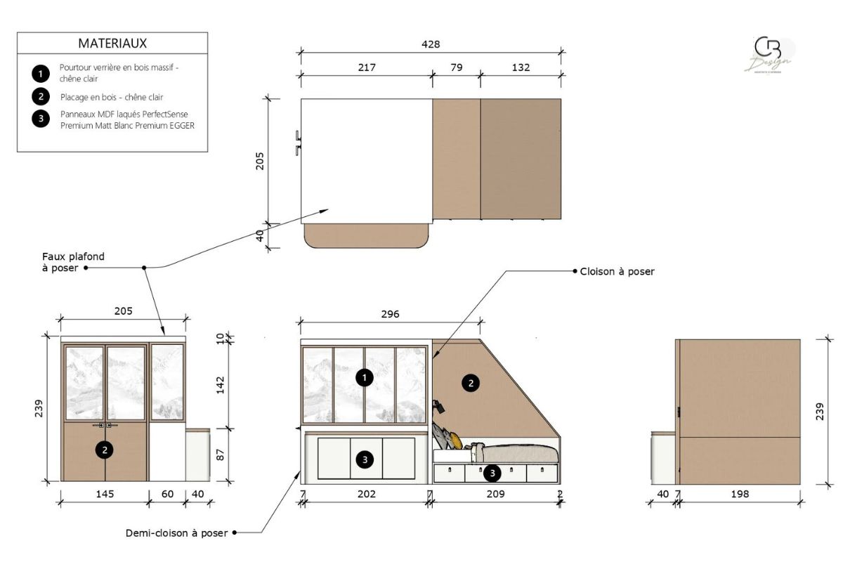
Un bureau lumineux sous pente
Sous le chien assis, Caroline a installé un bureau confortable et bien éclairé. Un grand plan de travail, des rangements discrets, et une vue dégagée sur le jardin : parfait pour travailler, bricoler, ou créer en toute tranquillité.
Une bibliothèque et un coin jeux pour toute la famille
Le long d’un mur, un linéaire sur mesure regroupe une bibliothèque, une niche TV et des rangements bas. De quoi lire, jouer, regarder un film ou retrouver ses jeux de société préférés… sans tout laisser traîner.
Un coin nuit confortable
Dans une niche dédiée, un grand lit 180 x 200 cm a été installé, avec des rangements intégrés en dessous. Ce coin nuit, discret mais complet, permet d’accueillir confortablement famille ou amis.
Une cage d’escalier fermée pour plus de calme
L’escalier a été habillé d’une verrière en bois sur mesure, aux lignes sobres. Elle filtre les bruits entre les étages tout en laissant passer la lumière. Un meuble bas vient compléter cet aménagement avec des rangements supplémentaires.
💡 Ce projet montre qu’un palier peut se transformer en bureau, et même devenir une vraie pièce de vie quand il est bien pensé. Grâce à une bonne optimisation de l’espace, des aménagements sur mesure et une vision d’ensemble, Caroline a su réunir quatre fonctions dans un seul lieu – bureau, coin nuit, bibliothèque, espace tv – tout en préservant une circulation fluide et de l’espace libre pour que les enfants puissent jouer. Un aménagement à la fois pratique, chaleureux… et parfaitement adapté à la vie de famille.
© Photos Caroline Binnert, architecte d’intérieur HOMER®
Caroline
Architecte d’intérieur HOMER® dans le Bas-Rhin
Forte de 20 ans d’expérience en Ressources Humaines, Caroline allie sens de l’écoute, gestion de projet et passion pour l’architecture d’intérieur. Spécialisée en optimisation d’espace, elle conçoit des lieux de vie et de travail sur mesure, esthétiques et fonctionnels. Particuliers ou professionnels, elle accompagne chaque client avec des outils précis (plans 2D, visuels 3D, photoréalisme) pour créer des espaces qui leur ressemblent et facilitent leur quotidien.

